Westcott Elementary School



Westcott Elementary School – Where Inclusion Meets Inspiration
In the heart of the North Vancouver District, Westcott Elementary School stands as a beacon of inclusion and teamwork. From the very beginning, their mission became the cornerstone of my design approach—a space where every student feels welcome, engaged, and inspired.

The Concept – Northern Lights
I drew inspiration from one of nature’s most mesmerizing phenomena: the Northern Lights. This magical display is born from the union of Earth and Universe, a perfect harmony of elements creating something extraordinary. For me, this was more than a visual theme—it became a metaphor for the school itself. Just as the Aurora Borealis is shaped by the meeting of forces, Westcott thrives on the collaboration of people, ideas, and cultures.

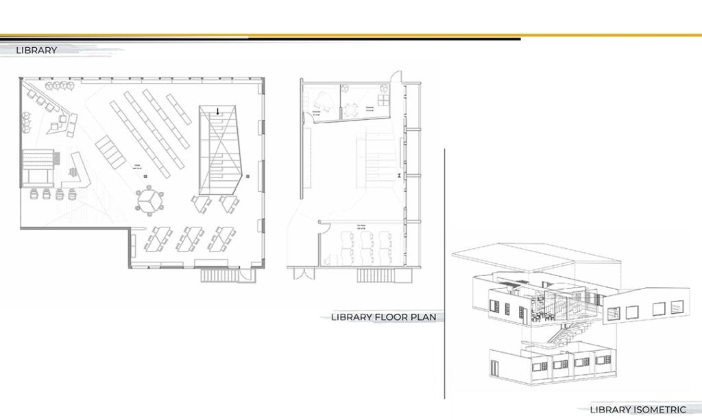
The Heart of the School
The existing library, already a central hub for learning, was reimagined as the heart of the school—unique, inviting, and alive with possibility. From here, connections extend to the ESL classroom and the counsellor’s office, united by an extraordinary feature: a slide paired with a staircase that doubles as a petite, informal auditorium. It’s a playful yet functional design choice, inviting both movement and community gatherings.

A Dynamic Learning Environment
Classrooms are designed with flexibility and energy in mind. Colorful, movement-inspired flooring creates a lively atmosphere, while lightweight, mobile furniture empowers students to arrange their own learning spaces. Materials such as carpet tile, linoleum, and cork were chosen for durability, comfort, and acoustic benefits—ensuring that the environment supports both focus and creativity.

Hallways with Purpose
Even the corridors are part of the learning journey. Colorful wayfinding elements help students navigate easily, fostering independence. Reading niches invite quiet moments of discovery, while built-in storage outside classrooms supports teachers with easy access to materials—keeping spaces organized and functional.



More than a School
This project was about more than upgrading spaces—it was about creating an environment where inclusion is lived daily, where learning feels like an adventure, and where the architecture itself tells a story of unity, playfulness, and possibility. Just like the Northern Lights, the design is a celebration of connection—between people, ideas, and the world around them.
